Properties

Sold
$775,000
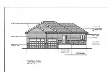
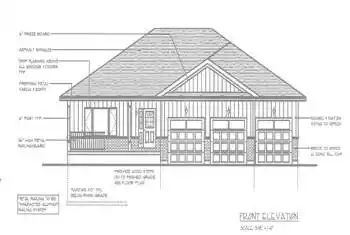
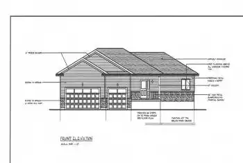
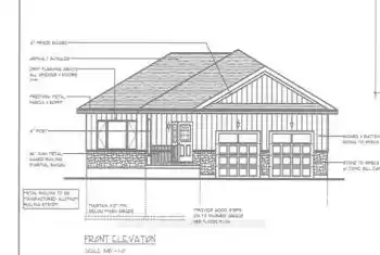
1242 RICE Road, Minden Hills, Ontario K0M 2K0
  • 3Beds
  • 2Baths
    90 Listings