Properties

For Sale
$599,000
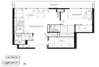
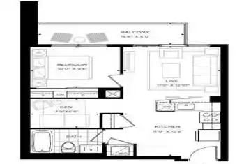
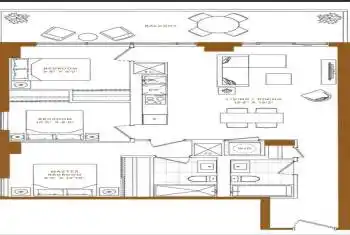
30 Roehampton Avenue Unit# #301, Toronto C10, Ontario M4P 1R2
  • 2Beds
  • 1Baths
760 Listings